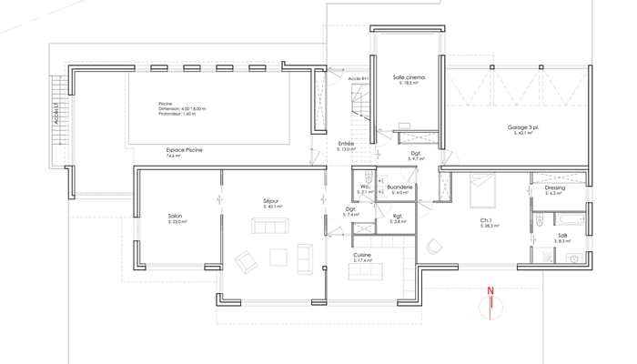
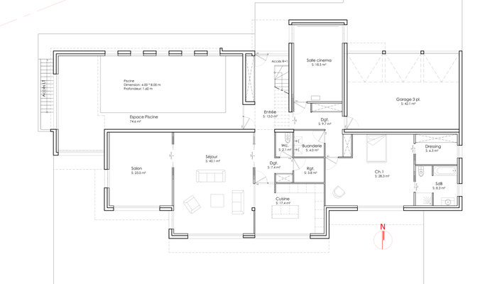
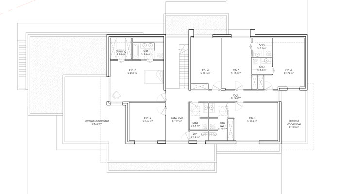
Conception d'une maison individuelle

Octeville sur Mer (76)


Maîtrise d'Ouvrage: Privé

Mission conception

Surface plancher: 360 m² 

Coût prévisionnel des Travaux: 0,7M € HT

Etude 2017