Maîtrise d'Ouvrage: Privée
Mission complète
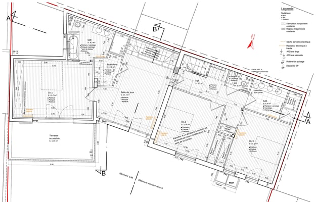
Surface: 202 m² plancher
Coût prévisionnel des Travaux: 0,3 M€ HT
Etude 2012 - Livraison 2013
L’aménagement prévu sur le terrain par l'agence Seine Architecture consiste à restructurer une maison existante et créer une extension à cette maison sur deux niveaux.
La maison existante découle de la séparation d’une même maison en 3 lots.
Dans le souci de respecter l’uniformité de cette maison séparée en trois lots avoisinants, aucune modification du volume de ce bâtiment existant situé sur la parcelle n'est prévue.
L’extension se fait en limite séparative Nord de la Parcelle. Elle se présente sur deux niveaux.
Cette extension est conçue de manière à former un ensemble homogène avec le bâtiment existant tout en affirmant une architecture contemporaine.
Un élément du bâtiment projeté, traité de manière plus basse avec une façade en verrière, vient faire office de rotule entre la partie ancienne et la partie nouvelle de la parcelle.
L’ensemble de l’extension est conçue en toiture terrasse, avec une hauteur à l’acrotère culminant à 6.00 m pour l’élément rotule, et 6.60 m pour le reste (toiture terrasse végétalisée).
Les façades du bâtiment sont conçues, traitées et revêtues de manière à conserver une homogénéité esthétique avec l’ensemble du bâti de la zone.
