Maîtrise d'Ouvrage: Privée
Mission conception / PC
Surface: 349 m² plancher
Coût prévisionnel des Travaux: NC
Etude 2011
Un projet réalisé par l'agence Seine Architecture du Havre :
La villa existante est implantée sur les hauteurs de la parcelle et domine l’ensemble du terrain.
Cette implantation lui confère des vues dégagée sur le golfe de Saint-Tropez.
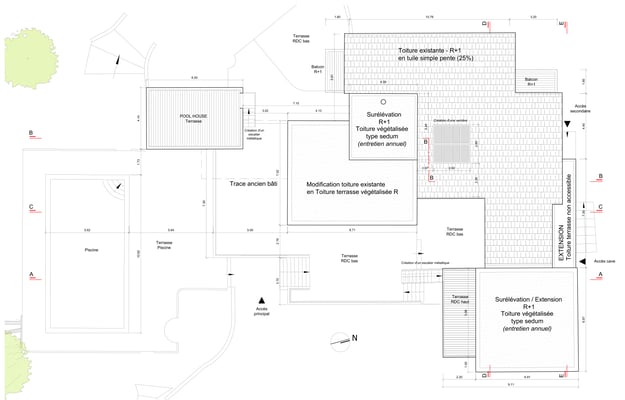
La villa existante est constituée de deux blocs principaux, chacun recouvert d’une toiture en tuiles rondes « canal » avec des pentes d’orientations différentes.
Dans le souci d’en simplifier la lecture architecturale, une des toitures sera modifiée en toiture terrasse végétalisée.
La restructuration lourde de cette villa a pour but de réorganiser ces différents volumes, ainsi que d’ouvrir cette villa vers son environnement et de lui apporter vues et luminosité. Pour ce faire, une suppression partielle de surface plancher de la maison est nécessaire. Une extension et deux surélévations sont prévues, permettant de créer un élément marquant et ouvert vers son environnement.
