Maîtrise d'Ouvrage: SCI MP Invest
Concours (Projet Lauréat) - Mission PC
Surface plancher: 300 m²
Coût prévisionnel des Travaux: 450 000 € HT
Permis obtenu
L’intégration de l’opération à son environnement par les architectes de Seine Architecture, le caractère végétalisé du site, l’emplacement des arbres existants, la position des bâtiments voisins, les contraintes liées à la proximité de la crèche et la conformité au Plan Local d’Urbanisme sont autant de facteurs déterminants dans la réflexion du projet.
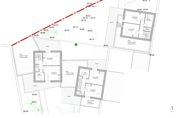
Implantation des bâtiments
L’emplacement des 3 maisons dans le terrain, en plan masse, prend en compte les facteurs suivants :
Ø Conservation des plus beaux arbres et de l’ambiance végétalisée du square
Ø Intégration dans le site par rapport aux parcelles voisines (Alignement recherché par rapport aux constructions existantes)
Ø Orientation des constructions (Sud ou Ouest) et valorisation des espaces libres
Ø Conservation d’une zone tampon afin de préserver l’ensoleillement et l’intimité de la crèche par rapport aux constructions projetées.
Dans le souci de conserver l’ambiance végétalisée ressentie depuis la rue Aimable Leblond et afin d’offrir le maximum d’orientation Sud aux constructions et aux espaces libres, nous avons pris le parti d’une implantation des maisons en retrait de la voie publique, l’implantation de celles-ci se calant en alignement des constructions voisines.
Afin d’être conforme à la réglementation urbaine, les constructions ne se limitant pas à la bande de 15m en limite de la voie publique, leur hauteur relative est inférieur à 9 m.
Par ailleurs la position des maisons au plus proche de la limite nord des parcelles en longueur (axe Nord / Sud) est une typologie courante de la maison sanvicaise (souvent mono-orientée), permettant ainsi de bénéficier au maximum de son jardin et de l’ensoleillement.
Deux parcelles ont donc un accès directement depuis la rue Aimable Leblond avec des bâtiments bénéficiant majoritairement d’une orientation SUD. De par les limites du terrain, une troisième parcelle est plus enclavée, en retrait des voies publiques (accès à créer depuis la rue Gramme) composé d’une maison individuelle orientée principalement à l’Ouest.
Parti pris architectural
La volumétrie du projet se défini suivant 2 points directeurs découlant d’une analyse précise du site et de son environnement :
Ø La maison « Sanvicaise » : bâti traditionnel propre au quartier composé de façades en briques et d’une toiture en ardoises.
Ø L’identité actuelle du site : zone verte au sein du quartier, calme et en retrait de la rue, composé d’un cadre très végétalisé et de nombreux arbres dont certains pouvant se définir comme majestueux.
Le projet tient à respecter ces deux points définis, la ligne directrice dans la conception étant de mettre en relation ces 2 éléments par des éléments de transition.
Il s’agit donc de construire des corps de maisons reprenant les codes des constructions traditionnelles du quartier tout en conservant cet aspect d’écrin de verdure du site. Le projet se décompose donc en 3 strates :
Ø Construction de 3 corps bâtis en revêtement brique, composé d’un rez-de-chaussée et d’un étage sous comble, avec toiture à double pente en ardoises.
Ø Construction de « modules en revêtement bois » en extension des corps en briques, sur un seul niveau, permettant une transition entre les volumes briques, faisant références aux constructions traditionnelles du site, et l’ambiance végétalisée du square.
Ø Conservation du cadre végétalisé du square et d’une grande partie des arbres existants, dont les plus remarquables. Le souci étant de préserver la qualité paysagère du site actuelle.
Clôture et accès
Dans la continuité du principe de préservation du cadre et de la qualité paysagère actuelle du site, le parti a été pris de conserver la clôture existante sur la rue Aimable Leblond, avec des adaptations permettant à celle-ci de s’adapter aux contraintes du projet. Les adaptations étant la création d’un second accès depuis la rue Aimable LEBLOND permettant ainsi de trouver sur cette rue deux terrains linéaires (axe Nord / Sud) typique du foncier de Sanvic, chacun ayant son accès indépendant.
Un accès est à recréer depuis la rue Gramme, en accord avec la ville du havre, pour l’accès à une troisième parcelle, plus enclavée et au calme, non visible depuis la rue.
